ピュアスタイル

自然の質感を楽しみながら暮らす
あたたかみのある家

無垢材や漆喰などを使い、
自然の質感を楽しみながら暮らす「ピュアスタイル」。
住む人と家が一緒に年月を重ねて変化していく。
素材にこだわることで、
シンプルでありながら暮らしをより心地よいものに。

Simple and Comfortable

EXTERIOR

外観

グレーや白、木目を基調とした、統一感のある外観は柔らかい雰囲気をもたらします。
飽きの来ない単調な外観に、植栽が映え、四季を彩る。
漆喰や木材など、素材にもこだわったお家は、
年を経るとともに変化するその姿も楽しむことができますよ。

VIEW MORE

LIVING&DINING

リビング/ダイニング

シンプルを追求したインテリアが素材を引き立て、居心地の良い空間に。
柔らかな無垢の木が家族の団欒をより一層あたたかく感じさせます。
光が入り込む大きな吹き抜けが1階と2階を繋ぐ。
爽やかな風が、季節の移ろいを知らせていく。
家族を繋ぎ、暮らしに奥行きをもたらす、そんなお家です。

VIEW MORE

KITCHEN

キッチン

キッチンからはいつでもダイニングにいる家族の顔が見えるから、
自然と会話が弾んでしまいます。
平日はその日あった事をおしゃべりして、休日は並んで一緒に料理を作る。
ナチュラルなトーンでまとめられた、あたたかな空間は心にも余裕をもたらします。

VIEW MORE

WET AREAS

ウェットエリア

シンプルで無駄のないデザインと無駄のない導線は
毎日の家事をスムーズにさせます。
お気に入りの空間に居ながらの家事はなんだかちょっぴり楽しくなったり。
効率の良い導線のおかげで、忙しい生活のなかでも
家族とのゆったりとした団らんの時間をつくることができます。

VIEW MORE
Recommended Style

シンプルを追求した家

Recommended Style

設計士のこだわり

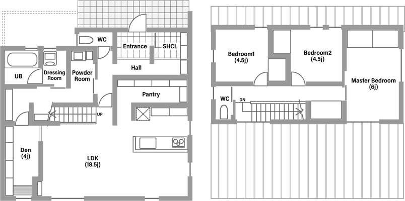
家事動線を確保しつつ、縁側のような余剰空間も確保したゆとりのあるプランとなっています。
一例として、広く取ったパントリーは、備蓄等の収納を可能としており、リビング裏のスペースは、書斎や学習スペースとしての利用を想定しています。
ストレスのない生活を送っていただくために、ノイズを排除して内外共にシンプルを追求したデザインとなっています。

\もっと/
ピュアスタイルの暮らしのイメージが
広がる

brooklyn Style Book
VIEW MORE
Pure Style

CONTACT

お気軽にご相談ください

電話でのお問い合わせはこちら

050-5536-3355

9:00-18:00

  1. HOME
  2. Pure Style(ピュアスタイル)