MODEL HOUSE

Welcome!
SLOW(スロウ)

【KBCマイホーム展福津会場】
西海岸の家をイメージした遊び心のある家
SLOW(スロウ)

〒811-3209 福岡県福津市日蒔野6-6-22
KBCマイホーム展福津会場 内
Open / 10:00 - 18:00 火・水曜定休

現在地からの経路を調べる

Concept

西海岸の家をイメージした遊び心のある家

ひときわ目を惹く西海岸をイメージしたモデルハウス。
遊び心に満ちたこの家はまさに「自由を愛する人の自由な家」
家の中で風を感じながら、カリフォルニアスタイルで
統一したインテリアをお楽しみください。

ギャラリー

プラン

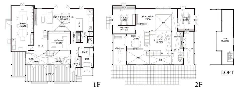
1F 2F LOFT

1階床面積:129.88㎡(39.28坪) / 2階床面積:83.71㎡(25.32坪) /
延床面積:213.59㎡(64.61坪) / ロフト面積:19.46㎡(5.88坪)

Safety

  • 夏は涼しく、冬は暖かい

    高気密・高断熱

    夏は涼しく、冬は暖かい

    冷暖房効率が高く、電気代も大幅に削減
    結露を予防し耐久性を向上!

  • 家族で健康に暮らせる

    家族で健康に暮らせる

    自然のチカラで家中の化学物質を除去し
    室内を爽やかな空気に変えます!

ご来場の際は

事前のWeb予約が
おすすめです

  1. Point.01

    土日も待ち時間なしでゆっくり見学できます!

    土日も待ち時間なしで
    ゆっくり見学できます!

  2. Point.02

    混雑時も優先的にご案内するので、お忙しい方に便利です!

    混雑時も優先的にご案内するので、
    お忙しい方に便利です!

  3. Point.03

    相談したい内容があれば事前に準備します。当日は気になる情報を効率よく知ることができます。

    相談したい内容があれば事前に
    準備します。
    当日は気になる情報を
    効率よく知ることができます。

アクセス

〒811-3209 福岡県福津市日蒔野6-6-22 KBCマイホーム展福津会場 内
Open / 10:00 - 18:00 火・水曜定休

来場バナー

【キャンペーン概要】

期間中、ご予約の上ご来場頂き、来場後アンケートに回答いただくと3,000円分のQUOカードPayをプレゼント!
さらに、2回目にご相談頂くと、プラス7,000円分プレゼント!
合わせて最大10,000円分のQUOカードpayをプレゼント致します。
※来場後、3日以内にメールにて事後アンケートのURLをお送りいたします。
※回答後、メールもしくはLINEにてQUOカードpayをお送りいたします。

【対象】

悠悠ホーム(FAVSTYLE部門,EQUAL部門,注文住宅部門,建売住宅部門,リフォーム部門)に初めてご相談される方。
FAV STYLE施工可能エリア(福岡・佐賀)にて真剣にお家作りを検討されている方
※本イベントはご家族様向けのイベントとなりますので、お一人様でのご来場は対象外とさせて頂きます。
※ご来場時、身分証明書のご提示にご協力をお願いする場合がございます。
※新築をご検討されていないと担当営業が判断した方にはお渡しできません。

電話でのお問い合わせはこちら

050-5536-3355

9:00-18:00

  1. HOME
  2. 【KBCマイホーム展福津会場】西海岸の家をイメージした遊び心のある家 SLOW(スロウ)